• inventaire topographique
  • inventaire topographique, Plogoff
Ferme, Kerstrat (Plogoff)
Œuvre étudiée

Dossier non géolocalisé

Localisation
  • Aire d'étude et canton Cap Sizun - Pont-Croix
  • Commune Plogoff
  • Lieu-dit Kerstrat
  • Cadastre 2018 AV 9
  • Dénominations
    ferme
  • Parties constituantes non étudiées
    enclos, cour, étable à chevaux, étable à vaches, grange, porcherie, poulailler

En consultant les archives privées de la ferme, étudiées et retranscrites méticuleusement par un membre de la famille, on apprend que la maison actuelle a remplacé dans les années 1820 un logis bien plus modeste bâti à la fin du 17e siècle ne comportant qu’une pièce en rez-de-chaussée.

D’après lui, « les habitants de Kerstrat étaient de petits bourgeois se faisant appeler "honorable homme ou honorable femme", vivant vraisemblablement du commerce en plus du revenu de l'exploitation. Dès la fin du XVIIe siècle et jusqu'au bon milieu du XVIIIe siècle plusieurs membres de leurs familles travailleront pour les différentes Compagnies des Indes. Comme laissent entrevoir les nombreux inventaires, la vie à Kerstrat était relativement aisée et on prêtait volontiers de l'argent sous obligation. Les gens de Kerstrat faisaient partie des notables de Plogoff, siégeant au Conseil de Fabrique, dans la compagnie du Guet, puis au Conseil Municipal. Kerstrat sera même un temps la mairie de Plogoff. »

On peut observer de nombreuses dates sur les bâtiments actuels de la ferme, toutes renvoyant au 19e siècle. Les plus anciennes sont portées sur les cinq bâtiments signalés sur le cadastre de 1837 : 1814 et 1820 sur un ancien logis devenu dépendance et appelé ti nevez, 1818 sur une étable aujourd’hui ruinée, 1822 sur le logis principal, 1828 sur le pignon sud des crèches à cochons et 1838 sur la grange. L’écurie, qui est devenue le lieu d’habitation, porte la date plus tardive de 1845 et a été rehaussée d’un étage dans la première moitié du 20e siècle. Deux chambres y ont été aménagées à ce moment au-dessus des chevaux.

Viennent ensuite deux dates renvoyant aux années 1860. Celles-ci témoignent d’une volonté fort probable des propriétaires d’embellir leur ferme car on les observe sur des bâtiments ou édicules très soignés : Elles se trouvent sur l’alignement crèches à cochons / pigeonnier (1861) et sur l’un des quatre piliers en granite qui ouvrent l’allée menant à la ferme (1864). A ce sujet, l’étude des archives de la ferme montrent qu’à partir de décembre 1860, le propriétaire des lieux contracta 26 emprunts pour une somme totale d’environ 30.000 francs.

Le seul changement à signaler sur la ferme entre les deux enquêtes d’inventaires concerne la disparition des grands ormes qui bordaient l’allée menant à la ferme.

  • Période(s)
    • Principale : 19e siècle
  • Dates
    • 1818, porte la date
    • 1820, porte la date
    • 1822, porte la date
    • 1838, porte la date
    • 1845, porte la date
    • 1861, porte la date
    • 1864, porte la date

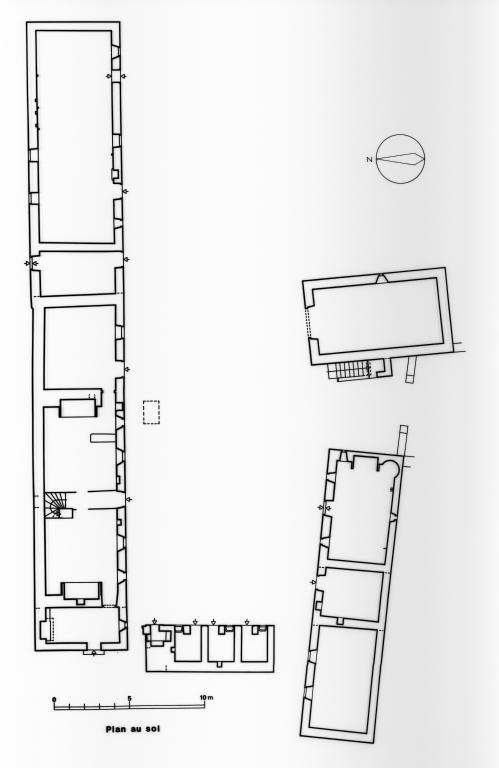
Située le long de la D784, entre le bourg et le Loc'h, la ferme et ses dépendances agricoles occupent le nord-ouest du petit village de Kerstrat. Les bâtiments se trouvent au bout d’une allée d’environ cinquante mètres, autrefois bordée de hauts ormes, dont l’entrée est flanquée de deux paires de piliers soigneusement maçonnés. Au bout de cette allée se trouve un portail donnant sur une cour dallée.

Le nord de cette cour est occupé par l’alignement principal composé du logis, de l’écurie et d’un petit bâtiment en appentis appelé toull du (trou noir). Autrefois, il se prolongeait à l’est d’une maternité pour porcelets et veaux et d’une grande étable. Ces derniers bâtiments sont aujourd’hui ruinés mais ont conservé quelques trous d’attache.

La façade antérieure du logis est en pierres de taille et présente une élévation en quinconce. Certains linteaux portent une date ou le nom d’un bâtisseur : IEAN CHARLES MARIE MENER 1822 sur la porte d’entrée, Y:CARVAL VEUF D’OLLIVE CHARLES sur la fenêtre est du rez-de-chaussée et C:Y.M :CARVAL FILS sur la fenêtre ouest de l’étage. Notons la présence de pierres en forme de trapèze retourné au-dessus des baies du rez-de-chaussée. Ce type de disposition, très peu courant, a également été observé sur une ferme de Lezanquel en Cleden-Cap-Sizun.

Les autres effets décoratifs sont portés sur les moulures du bandeau médian, de la corniche du toit et des souches de cheminées.

Le sol du bâtiment est composé de grandes dalles de granites et sa cheminée ouest n’est pas surélevée, ce qui est un cas plutôt rare dans la commune.

Le côté ouest de la cour est clos par un alignement de bâtiments très soignés : les crèches à cochons et le pigeonnier-poulailler forment un ensemble cohérent avec la même maçonnerie en pierres de taille, le même bandeau saillant et la même corniche du toit moulurée en de deux façons différentes. Un portail menant vers un petit jardin et portant l’inscription Y.LEMENER fait la jonction entre le logis et cet alignement.

Au sud de la cour, faisant face au logis, se trouve un bâtiment appelé ti nevez (la maison neuve). Il était signalé comme maison sur le cadastre de 1837 mais sert aujourd’hui de dépendance. Le côté logis de sa façade antérieure est en pierres de taille et porte les inscriptions suivantes : YVES CARVAL OLIVE CHARLES sur la fenêtre est et IAN CHARLES MARIE MENER 1814 sur la porte d’entrée. Son côté crèche à animaux est en moellons et sur le linteau de sa porte se trouve l’inscription : I:C :1820.

D’après un témoignage recueilli sur place, cette dépendance abritait une batteuse actionnée par un manège à chevaux dont l’emplacement en encore visible dans la cour. Le bras qui actionnait la machine passait par un trou aménagé dans la maçonnerie, près de la porte d’entrée. Précisions également qu’à l’intérieur du bâtiment, dans l’angle sud-est, se trouvent les vestiges d’une ancienne cuve à bouillir le linge de section circulaire, un bib .

La dernière dépendance, une grange, se trouve à l’angle sud-est de la cour. Deux inscriptions sont portées sur le bâtiment : I : CHARLES VEUF M.MENER 1838 et YVES.CARVAL. Seul son pignon nord, dans lequel a été aménagée la porte charretière en plein cintre, est en pierres de taille. Le grenier est accessible par une porte haute desservie par un escalier extérieur en pierres récemment restauré. Une niche pour le chien a été aménagée dans la maçonnerie de cet escalier.

Notons pour finir quelques détails observés dans le dallage de la cour :

Les galets de mer sur chant disposés devant l’écurie diffèrent du dallage général de la cour et rappellent le sol des écuries du Cap-Sizun.

Certaines dalles de la cour ont été creusées intentionnellement de façon à créer de petites réserves d’eau que les poules pourront visiter.

La zone circulaire non dallée qui se trouve près du ti nevez rappelle l’emplacement de l’ancien manège à chevaux.

  • Murs
    • granulite pierre de taille
    • granulite moellon enduit
  • Toits
    ardoise
  • Étages
    1 étage carré
  • Élévations extérieures
    élévation ordonnancée sans travées
  • Couvertures
    • toit à longs pans
    • pignon découvert
  • Escaliers
    • escalier dans-oeuvre : escalier tournant à retours sans jour
  • Typologies
    plan allongé, logis à deux pièces par étage, charpente sans poinçon
  • Statut de la propriété
    propriété privée

Documents figurés

  • Cadastre de la commune de Plogoff, 1837 : Section C 1 du Bourg. Série 3 P 169.

    Archives départementales du Finistère : 3 P 169/1/9

Annexes

  • Enquêtes de 1977-1978, 1980-1984
Date(s) d'enquête : 1977; Date(s) de rédaction : 1984, 2019
Dossiers de synthèse