• inventaire topographique
  • inventaire topographique, Cléden-Cap-Sizun
Ferme, Kerlaouen (Cléden-Cap-Sizun)
Œuvre étudiée

Dossier non géolocalisé

Localisation
  • Aire d'étude et canton Cap Sizun - Pont-Croix
  • Commune Cléden-Cap-Sizun
  • Lieu-dit Kerlaouen
  • Cadastre 1968 ZO 239
  • Dénominations
    ferme
  • Parties constituantes non étudiées
    jardin, cour, étable à chevaux, puits, étable à vaches, porcherie, hangar agricole, grange, four à pain

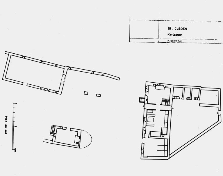
Si l’on se réfère à l’inscription portée sur le puits accolé au logis, cette ferme a été bâtie pour G. K(er)ISIT en 1809.

Le logis, son écurie attenante, le puits, le verger et la grange à porte charretière datée de 1817 sont en effet signalés sur le cadastre de 1837. On observe pourtant aujourd’hui deux autres bâtiments agricoles : un fournil formant clôture au sud-ouest de la cour et des crèches à cochons ruinées, en retour derrière la maison, dans le verger.

L’enquête de 1977 avait également signalé un hangar sur piliers de granite disparu aujourd’hui.

Cette ferme a aujourd’hui cessé son activité et est devenue, comme beaucoup d’autres dans le village, une résidence secondaire.

  • Période(s)
    • Principale : 1er quart 19e siècle
    • Secondaire : 19e siècle
  • Dates
    • 1809, porte la date
    • 1817, porte la date

Située à l’entrée sud du village de Kerlaouen, cette ancienne ferme propose un logis et des dépendances agricoles tout à fait représentatifs de l’architecture rurale du 19e siècle dans le Cap-Sizun.

Le logis a un étage, une façade antérieure crépie avec des baies régulièrement disposées en quinconce. Deux bandeaux saillants marquent les limites des niveaux et la corniche du toit ainsi que les souches de cheminées sont moulurées selon le mode habituel.

Une écurie en rez-de-chaussée, aujourd’hui cachée par la végétation, est attenante au logis.

Le puits en pierres de taille, de section carrée et sommé d’une boule est accolé à la façade. Notons sur la photo de 1977 le pavage autour du puits et les galets sur champ rappelant le sol de l’écurie devant la porte d’entrée. Ces éléments ont aujourd’hui disparu.

Le reste des dépendances sont soit isolées dans la cour : la grange à porte charretière au sud et le fournil (ou ti forn, maison du four) au sud-est, soit en retour : les crèches à cochons en ruines derrière la maison.

La maison du four, très bien conservée, est intéressante. En effet, ce petit bâtiment multitâche, tout en formant clôture au sud-est, abritait un four à pain, une cellule pour un cochon (mangeoire sur la façade ouest) et un grenier accessible par un escalier extérieur plaqué contre le pignon sud.

  • Murs
    • granulite moellon enduit
  • Toits
    ardoise
  • Étages
    1 étage carré
  • Couvertures
    • toit à longs pans
    • pignon découvert
  • Escaliers
    • escalier dans-oeuvre : escalier tournant à retours sans jour
  • Typologies
    plan allongé ; type ternaire variante, logis à deux pièces par étage ; charpente sans poinçon ; puits couvert en maçonnerie
  • Statut de la propriété
    propriété privée

Annexes

  • Enquêtes de 1977-1978, 1980-1984
Date(s) d'enquête : 1977; Date(s) de rédaction : 1984, 2018
Articulation des dossiers