Ce dossier correspond à une transcription numérique d’éléments d’enquêtes antérieures à 2000. Tout enrichissement est le bienvenu.
Dossier d’œuvre architecture IA00005914
| Réalisé par
;
- inventaire topographique
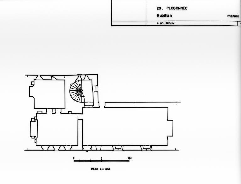
Manoir, Rubihan (Plogonnec)
Œuvre étudiée
Auteur
Dossier non géolocalisé
Localisation
-
Aire d'étude et canton
Douarnenez - Douarnenez
-
Commune
Plogonnec
-
Lieu-dit
Rubian
-
Cadastre
1981
YS
8
-
Dénominationsmanoir
-
Période(s)
- Principale : 16e siècle
-
Murs
- granite
- pierre de taille
-
Toitsardoise
-
Étages1 étage carré
-
Élévations extérieuresélévation à travées
-
Couvertures
- toit à longs pans
- pignon découvert
-
Escaliers
- escalier demi-hors-oeuvre : escalier en vis sans jour
-
État de conservationrestauré
-
Techniques
- sculpture
-
Représentations
- armoiries
-
Statut de la propriétépropriété privée
-
Éléments remarquablescheminée
- (c) Inventaire général, ADAGP
- (c) Inventaire général, ADAGP
- (c) Inventaire général, ADAGP
- (c) Inventaire général, ADAGP
- (c) Inventaire général, ADAGP
- (c) Inventaire général, ADAGP
Date(s) d'enquête :
1980;
Date(s) de rédaction :
1980,
1984
Castel Yves-Pascal
Castel Yves-Pascal
Cliquez pour effectuer une recherche sur cette personne.
Articulation des dossiers