Ce dossier correspond à une transcription numérique d’éléments d’enquêtes antérieures à 2000. Tout enrichissement est le bienvenu.
Dossier d’œuvre architecture IA00005674
| Réalisé par
- inventaire topographique
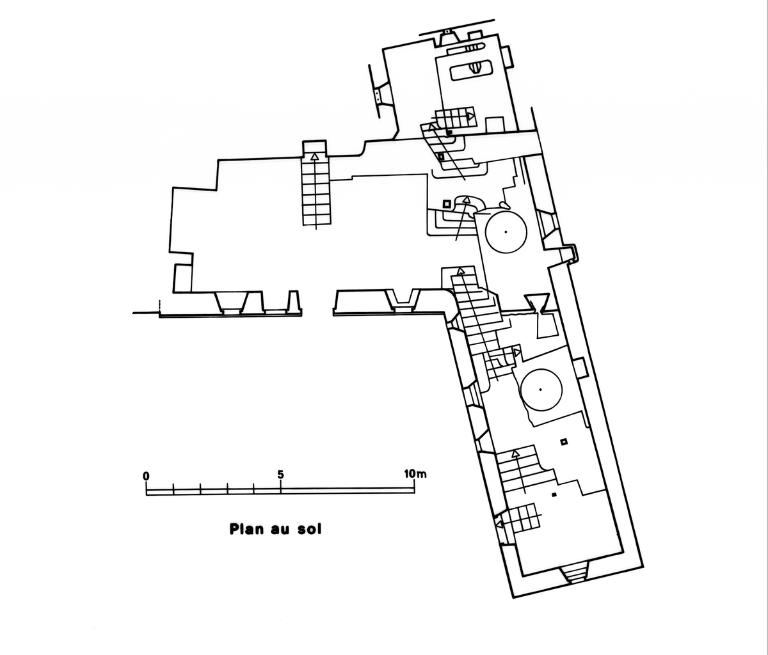
Moulin à eau, Kerzuot (Plozévet)
Œuvre étudiée
Auteur
Dossier non géolocalisé
Localisation
-
Aire d'étude et canton
Plogastel-Saint-Germain - Plogastel-Saint-Germain
-
Commune
Plozévet
-
Lieu-dit
Kerzuot
-
Cadastre
1967
B3
1433
-
Dénominationsmoulin
-
Parties constituantes non étudiéescour, communs, logement
Moulin construit entre 1781 et 1787 ; inscription (élévation sud) : "LE MOULIN LION OU AUTREMENT KDUOT PROFITTE A TITRE DE FEAGE PAR HONORABLE HOMME CHARLES LE GUELLEC QUI LE FAIT BATTIR 1787 IHS".
-
Période(s)
- Principale : 4e quart 18e siècle
- Principale : 4e quart 18e siècle
-
Dates
- 1781, porte la date
- 1784, porte la date
- 1787, porte la date
-
Murs
- granite
- enduit partiel
- pierre de taille
- moellon
-
Toitsardoise
-
Étages1 étage carré
-
Élévations extérieuresélévation ordonnancée
-
Couvertures
- toit à longs pans
-
Énergies
- énergie hydraulique
-
Techniques
- sculpture
-
Représentations
- armoiries
-
Statut de la propriétépropriété privée
-
Intérêt de l'œuvreà signaler
- (c) Inventaire général, ADAGP
- (c) Inventaire général, ADAGP
- (c) Inventaire général, ADAGP
- (c) Inventaire général, ADAGP
- (c) Inventaire général, ADAGP
- (c) Inventaire général, ADAGP
- (c) Inventaire général, ADAGP
- (c) Inventaire général, ADAGP
- (c) Inventaire général, ADAGP
- (c) Inventaire général, ADAGP
- (c) Inventaire général, ADAGP
- (c) Inventaire général, ADAGP
- (c) Inventaire général, ADAGP
- (c) Inventaire général, ADAGP
- (c) Inventaire général, ADAGP
- (c) Inventaire général, ADAGP
- (c) Inventaire général, ADAGP
- (c) Inventaire général, ADAGP
- (c) Inventaire général, ADAGP
- (c) Inventaire général, ADAGP
- (c) Inventaire général, ADAGP
- (c) Inventaire général, ADAGP
- (c) Inventaire général, ADAGP
- (c) Inventaire général, ADAGP
- (c) Inventaire général, ADAGP
- (c) Inventaire général, ADAGP
- (c) Inventaire général, ADAGP
- (c) Inventaire général, ADAGP
- (c) Inventaire général, ADAGP
- (c) Inventaire général, ADAGP
Date(s) d'enquête :
1979;
Date(s) de rédaction :
1980
Photographe