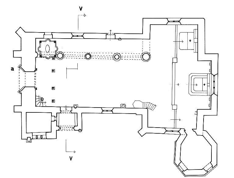
Eglise 16e siècle ; remaniée en 1655 et 1754 ; sacristie en 1715 ; inscriptions du bras de transept sud : I CAPI ON P I AVAN F 1655 ; I GOUSAREH F ; Robin recteur ; inscription porte nord de la nef : 1754 ; inscription sacristie : I BIRIAN FAB 1715 ; calvaire 16e siècle ; ossuaire 16e siècle.
Dossier d’œuvre architecture IA00005250
| Réalisé par
;
;
- inventaire topographique, Parc Naturel Régional d'Armorique
- étude d'inventaire
Eglise paroissiale Saint-Coulitz (Saint-Coulitz)
Œuvre étudiée
Auteur
-
Blanchard RomainBlanchard RomainCliquez pour effectuer une recherche sur cette personne.
Dossier non géolocalisé
Localisation
-
Aire d'étude et canton
Parc Naturel Régional d'Armorique - Châteaulin
-
Commune
Saint-Coulitz
-
Cadastre
1935
A3
421
-
Dénominationséglise paroissiale
-
Vocablessaint-Coulitz
-
Parties constituantes non étudiéescalvaire, ossuaire
-
Période(s)
- Principale : 16e siècle
- Principale : 17e siècle
- Principale : 1er quart 18e siècle
-
Dates
- 1655, porte la date
- 1715, porte la date
- 1754, porte la date
-
Murs
- granite
- schiste
- enduit partiel
- appareil mixte
-
Toitsardoise
-
Plansplan en croix latine
-
Étages2 vaisseaux
-
Couvrements
- lambris de couvrement
-
Couvertures
- flèche en maçonnerie
- toit à longs pans
- appentis massé brisé
- toit en pavillon
- pignon découvert
- noue
- croupe
-
Escaliers
- escalier de distribution : escalier droit
- escalier dans-oeuvre : escalier en vis sans jour
-
Typologiesclocher cornouaillais
-
Statut de la propriétépropriété de la commune
-
Intérêt de l'œuvreà signaler
- (c) Parc Naturel Régional d'Armorique
- (c) Inventaire général, ADAGP
- (c) Inventaire général, ADAGP
- (c) Inventaire général, ADAGP
- (c) Inventaire général, ADAGP
- (c) Inventaire général, ADAGP
- (c) Inventaire général, ADAGP
- (c) Inventaire général, ADAGP
- (c) Inventaire général, ADAGP
- (c) Inventaire général, ADAGP
- (c) Inventaire général, ADAGP
- (c) Inventaire général, ADAGP
- (c) Inventaire général, ADAGP
- (c) Inventaire général, ADAGP
- (c) Inventaire général, ADAGP
- (c) Inventaire général, ADAGP
- (c) Inventaire général, ADAGP
- (c) Inventaire général, ADAGP
- (c) Inventaire général, ADAGP
- (c) Inventaire général, ADAGP
- (c) Inventaire général, ADAGP
- (c) Inventaire général, ADAGP
- (c) Inventaire général, ADAGP
- (c) Inventaire général, ADAGP
- (c) Inventaire général, ADAGP
- (c) Inventaire général, ADAGP
- (c) Parc Naturel Régional d'Armorique
- (c) Parc Naturel Régional d'Armorique
- (c) Parc Naturel Régional d'Armorique
- (c) Parc Naturel Régional d'Armorique
- (c) Parc Naturel Régional d'Armorique
- (c) Parc Naturel Régional d'Armorique
- (c) Parc Naturel Régional d'Armorique
- (c) Parc Naturel Régional d'Armorique
- (c) Parc Naturel Régional d'Armorique
- (c) Parc Naturel Régional d'Armorique
- (c) Inventaire général, ADAGP
- (c) Inventaire général, ADAGP
- (c) Inventaire général, ADAGP
- (c) Inventaire général, ADAGP
- (c) Inventaire général, ADAGP
- (c) Inventaire général, ADAGP
- (c) Inventaire général, ADAGP
- (c) Inventaire général, ADAGP
- (c) Inventaire général, ADAGP
- (c) Inventaire général, ADAGP
- (c) Inventaire général, ADAGP
- (c) Inventaire général, ADAGP
- (c) Parc Naturel Régional d'Armorique
- (c) Parc Naturel Régional d'Armorique
- (c) Parc Naturel Régional d'Armorique
- (c) Parc Naturel Régional d'Armorique
- (c) Parc Naturel Régional d'Armorique
- (c) Parc Naturel Régional d'Armorique
- (c) Parc Naturel Régional d'Armorique
- (c) Parc Naturel Régional d'Armorique
- (c) Parc Naturel Régional d'Armorique
- (c) Parc Naturel Régional d'Armorique
- (c) Parc Naturel Régional d'Armorique
- (c) Parc Naturel Régional d'Armorique
- (c) Parc Naturel Régional d'Armorique
- (c) Inventaire général, ADAGP
- (c) Inventaire général, ADAGP
- (c) Inventaire général, ADAGP
- (c) Inventaire général, ADAGP
- (c) Inventaire général, ADAGP
- (c) Inventaire général, ADAGP
Bibliographie
-
Région Bretagne (Service de l'Inventaire du patrimoine culturel)
COUFFON, René, LE BARS, Alfred. Diocèse de Quimper et de Léon. Nouveau répertoire des églises et chapelles. Quimper : Association Diocésaine, 1988.
p. 376
Date(s) d'enquête :
1968;
Date(s) de rédaction :
1968,
1977,
2016
Mosser Françoise
Mosser Françoise
Cliquez pour effectuer une recherche sur cette personne.
Blanchard Romain
Blanchard Romain
Cliquez pour effectuer une recherche sur cette personne.
Dossiers de synthèse
Articulation des dossiers
Photographe